Details:
Customer
Lindbergh KFT (www.lindbergh.hu)
Technology Used
Ansys Fluent
Objective:
The project aims to validate Lindbergh KFT’s rain louvre through CFD analysis to meet certification standards within a limited timeframe.
Challenge:
Lindbergh KFT (www.lindbergh.hu) is a company that designs and manufactures, amongst other building architectural products, rain louvres to prevent rain from entering industrial buildings but simultaneously allow fresh air penetration. Recently Lindbergh needed to certify one of its louvres but the typical certification route through physical testing with standard CSN EN 13030 was not an option due to time limitations. Therefore, Lindbergh asked Simtec for validation through CFD.
Solution:
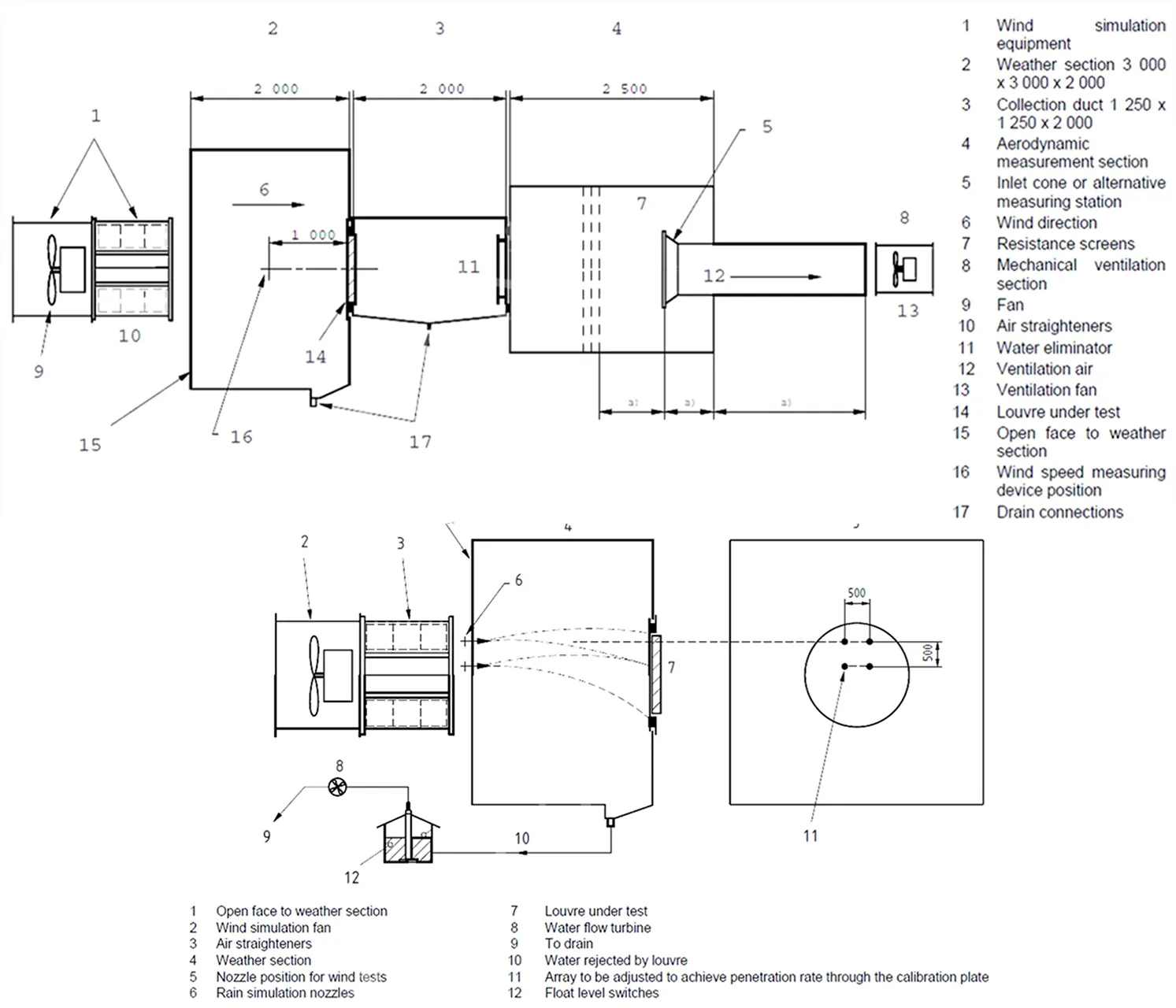
In the actual test (Figure 1), a fan blows air towards a wall with the examined louvre installed in its middle and four nozzles spray water towards the louvre too, simulating intense rain storm conditions. Behind the louvre a sealed section exists where the penetrated droplets are collected, enabling the estimation of the penetrated rain mass.
The constructed CFD model replicated exactly the test chamber geometry and conditions. The test workflow was also reproduced (calibration stage before the actual measurements stage). In order to validate the CFD results two louvres were simulated (a) type 78Z which has been physically certified and (b) type Z100 which is the louvre under assessment (Figure 2). The simulation of the certified louvre (type 78Z) is intended to validate the CFD model (mesh size, physical models, boundary conditions, assumptions, etc.), so that it can be safely applied to the untested louvre (type Z100).
CFD model utilized a number of physical submodels; turbulent air flow, Lagrangian tracking of water droplets, impingement of droplets on walls with splashing and wall film formation, in a fully transient and coupled manner. CFD results not only confirmed the measurements of certified louvre 78Z, but also proved that louvre Z100 is superior to louvre 78Z, most probably due to its highly inclined, almost vertical, blades (Figure 2). Figure 3 and 4 show the animations of the droplet tracking and wall film development in time, respectively.

Figure 1. Schematic description of the physical testing for rain louvres (standard CSN EN 13030)

Figure 2. Cross-sections of the two simulated louvres
Figure 3. Louvre 78Z - Evolution of droplet tracks colored by diameter size
Figure 3. Louvre 100Z - Evolution of droplet tracks colored by diameter size.
Figure 4. Louvre 78Z - Evolution of wall film thickness
Figure 4. Louvre 100Z - Evolution of wall film thickness
Conclusion:
Lindbergh KFT was able to save money and time in certifying one of its rain louvres purely by simulation.
In order to do that, Simtec replicated in full realism standard’s test geometry and conditions and applied a validation strategy based on simulating an already physically certified louvre and comparing it with the louvre under investigation.
This is a virtual certification procedure test that can be followed for any rain louvre.





